Skip to content
Tatham Design Associates
Professional Design & Building
Menu
HOME
DESIGN & BUILD PROJECTS
Design/Build Addition Craftsman Style
Sunshine Coast Secondary Home
Lakefront Cabin Renovation
Before Renovation
After Renovation
Plans
Shop/Office Suite
Waterfront Home
Infill Lot Duplex
Preliminary Design
Sketch Plans
Sketch Perspectives
Sections, site coverage
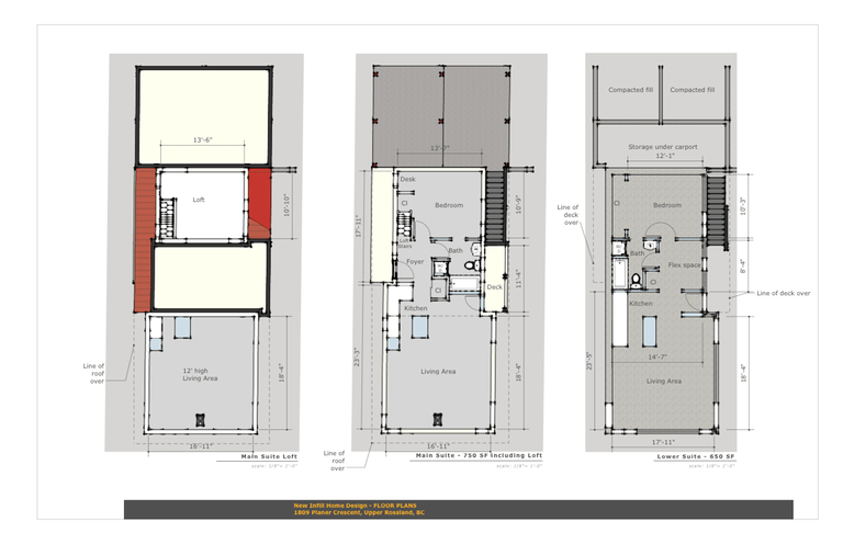
Preliminary-floor plans & Elevations
Custom Home, Kettle Valley, Kelowna
Squamish/Whistler Homes
Resort, Shuswap Lake, BC
Residence/HY Mann, Architect, Okanagan
Stonecrest Exterior
Stonecrest Interior
Stonecrest Construction Drawings
Townhouse Project, Calgary
Renderings
Flyover
ABOUT
CONTACT
Preliminary-floor plans & Elevations
Loading Comments...
Write a Comment...
Email (Required)
Name (Required)
Website